|
FATİH BELEDİYESİ (2012 )
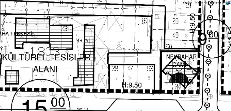
1/1000 PLANLARDA Adı/Parseli YOK EDİLEN CAMİLER
Mahalle, adını Nevbahar Camii’nden almıştır. Caminin banisi
Fatih’in ekmekçibaşısı Muhyiddin Mehmet Efendi’dir. zamanla
harap olan cami, Haseki Hürrem Sultan kendi adına
yaptırdığı Haseki Sultan Cami’nin inşası sırasında bakiyesi
ile birlikte cami yeniden yaptırılmıştır. Haseki Hürrem
Sultan’ın Nevbahar adlı cariyesinin ricasıyla camiye
Nevbahar adı verilmiştir. 1918 Fatih yangınında yanmış olan
caminin arsasının bir kısmına apartmanlar yapılmıştır.
Cevdetpaşa Caddesi Tevfik Fikret sokağı köşesindedir.

2012 1/1000 lik imar planlarında Tarihi cami adı ile
kaydedilmemiştir
 |